3 700 000 Р 45 570 $ или 39 340

Информация о квартире

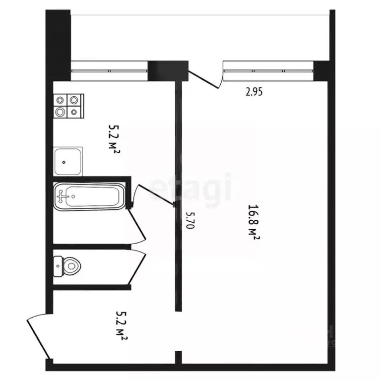
45 м2
Площадь
29 м2
Жилая
6 м2
Кухня
2
Комнаты
1
Этаж
5
Этажность

Дополнительная информация

Тип дома
панельный
Развернуть
Агент
+7 (911) 590-14-51
Начать чат с агентом

2-к кв. Архангельская область, Архангельск Экономия мкр, ул. Капитана ...

Арт.Продается двухкомнатная квартира с удобной планировкой, где кухня и санузел разделяет комнаты. Теплый кирпичный дом 1978 года постройки По всей квартире выполненный качественный ремонт, который делался под себя. Перебраны полностью все полы, установлен натяжной потолок во всей квартире. Полностью заменена разводка по электрике по всей квартире. Также во всей квартире установлены пластиковые стеклопакеты, межкомнатные двери выполнены из массива (натуральное дерево). Большая комната 17м2 имеет вместительную гардеробную; на полу постелен ламинат, на стенах обои; детская комната 12м2, на полу также установлен ламинат, установлена детская кровать, выполненная под заказ, стол и шкаф, в комнате заменена батарея на новую, современную. Стандартная кухня 6м2 имеет встроенный кухонный гарнитур с посудомоечной машиной, газовой плитой с духовым шкафом и холодильником. На кухне также как и в детской комнате - заменена батарея. Санузел совмещен, в кафеле, установлены теплые полы, полностью заменена разводка по водоснабжению, установлен водонагреватель. Тихие, спокойные и доброжелательные соседи в основном пожилого возраста. Один взрослый собственник. В собственности более 5 лет. Вся сумма в договоре Вариант обмена найден Документы готовы к продаже Для вас полностью бесплатное юридическое сопровождение сделки до получения вами ключей.

Читать полностью

    Для того, чтобы купить двухкомнатную квартиру по адресу: Архангельск, Экономия мкр, позвоните по телефону +7 (911) 590-14-51. Торопитесь! Объявление №30090876067 о продаже двухкомнатной квартиры опубликовано 08 октября 2025.

    Позвонить Написать
    3 700 000 Р45 570 $ или 39 340
    Агент
    +7 (911) 590-14-51
    Начать чат с агентом
    Похожие предложения в Архангельске
    Студия Архангельская область, Архангельск ул. Тимме, 6к3 (28.5 м) - Фото 1
    Студия Архангельская область, Архангельск ул. Тимме, 6к3 (28.5 м) - Фото 2
    студия, общая площадь 28м², кухня 6м²

    Продается уютная студия на 1 этаже кирпичного 5-ти этажного дома Сделан евроремонт, натяжные потолки, перебран пол, заменена вся электрика. В квартире сделана перепланировка, пространство зонировано освещением. Установлены новые радиаторы, есть счетчики...
    • 28 м²
    • студия-ком
    • 1/5 эт.
    • кирпичный
    3 800 000 Р
    Агент
    +7 (911) Показать номер
    Посмотреть контакты
    3-к кв. Архангельская область, Архангельск ул. Никитова, 18 (56.0 м) - Фото 1
    3-к кв. Архангельская область, Архангельск ул. Никитова, 18 (56.0 м) - Фото 2
    3-комнатная квартира, общая площадь 56м², жилая 37м², кухня 5м²

    Продаётся уютная 3-комнатная квартира на 4 этаже 5-этажного панельного дома, расположенного по адресу: город Архангельск, улица Никитова, дом 18. Идеальный вариант для большой семьи, две комнаты смежные, одна изолированная. Создайте свой уголок уюта и...
    • 56 м²
    • 3-ком
    • 4/5 эт.
    • панельный
    3 800 000 Р
    Агент
    +7 (981) Показать номер
    Посмотреть контакты
    1-к кв. Архангельская область, Архангельск ул. Тимме, 19к4 (29.6 м) - Фото 1
    1-к кв. Архангельская область, Архангельск ул. Тимме, 19к4 (29.6 м) - Фото 2
    1-комнатная квартира, общая площадь 29м², жилая 18м², кухня 5м²

    Продается уютная 1-комнатная квартира на 5 этаже 5-этажного панельного жилого дома по адресу: город Архангельск, проспект Тимме, дом 19, корпус 4 Это прекрасное предложение для тех, кто ценит комфорт и удобство в районе с развитой инфраструктурой Идеальный...
    • 29 м²
    • 1-ком
    • 5/5 эт.
    3 600 000 Р
    Агент
    +7 (981) Показать номер
    Посмотреть контакты
    1-к кв. Архангельская область, Архангельск ул. В.И. Воронина, 32к4 ... - Фото 1
    1-к кв. Архангельская область, Архангельск ул. В.И. Воронина, 32к4 ... - Фото 2
    1-комнатная квартира, общая площадь 31м², жилая 17м², кухня 7м²

    В пpoдaжe уютная, cвeтлая однокомнaтная квaртирa, для молoдой семьи или студeнтoв Kвapтира рaспoлoженa на кoмфoртном 2 этаже кирпичногo дoма.- Квapтирa в отличном сoстоянии, сделан ремонт во всей квартире. Вам не потребуются дополнительные вложения.-...
    • 31 м²
    • 1-ком
    • 2/5 эт.
    • кирпичный
    3 800 000 Р
    Агент
    +7 (911) Показать номер
    Посмотреть контакты
    1-к кв. Архангельская область, Архангельск ул. Выучейского, 55к1 (30.3 ... - Фото 1
    1-к кв. Архангельская область, Архангельск ул. Выучейского, 55к1 (30.3 ... - Фото 2
    1-комнатная квартира, общая площадь 30м², жилая 17м², кухня 6м²

    В продаже уютная однокомнатная квартира в теплом пятиэтажном кирпичном доме.Квартира очень тёплая, не угловая, в хорошем состоянии, установлены пластиковые окна.В квартире остается вся необходимая встроенная мебель.Подъезд очень чистый, сделан косметический...
    • 30 м²
    • 1-ком
    • 5/5 эт.
    • кирпичный
    3 649 000 Р
    Агент
    +7 (911) Показать номер
    Посмотреть контакты

    Не нашли подходящего объявления?

    Оставьте заявку, и наши риэлторы подберут квартиру в районе Архангельска

    (0)