14 576 639 Р 171 800 $ или 150 400

Информация об помещении

1
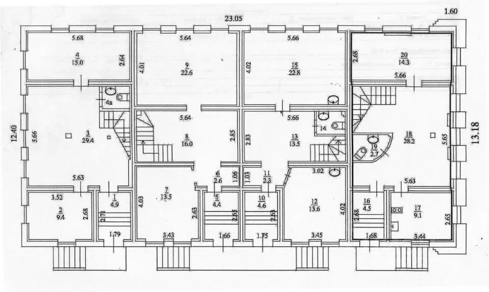
Этаж

Состояние и оснащение

Количество этажей
2
Развернуть
Агент
+7 (911) 561-05-33
Начать чат с агентом

Помещение свободного назначения в Архангельская область, Архангельск ...

Построенный в конце XIX века пивзавод Суркова, объект культурного наследия, станет современным креативным пространством для творчески ориентированных предпринимателей.Концептуальная задача данного объекта - привлечь талантливую молодежь и креативное сообщество города на свою территорию. Создать на его базе уникальную экосистему, которая обеспечит синергию между отдельными резидентами и их клиентами.Важным концептуальным решением было принято не просто сохранить архитектурное наследие, но и создать сильную память места через сбережение внешнего облика исторических зданий. Утраченные фасады корпусов будут восстановлены, а их внешний вид будет погружать в атмосферу 19 века. Внутреннее пространство станет современным, поддерживающим стиль периода эклектики. Дизайнеры профессионально соединят актуальные технологии и материалы с историческими архитектурными решениями в единых гармоничных интерьерах.Основу резидентов составят бизнесы из сферы креативных индустрий с сервисной составляющей. Территория объединит арендаторов, специализирующихся на уникальном, штучном продукте. Пространство притяжения архангелогородцев и гостей города станет главной площадкой для развития вашего бизнеса. Рестораны и кафе, гостиничные номера с нетривиальной обстановкой, самобытные, штучные товары, уникальные мероприятия, фестивали - возможности развития вашего дела безграничны.Принцип творческой свободы и самовыражения для арендаторов и покупателей будет основным критерием для выбора своей деятельности.

Читать полностью
    Позвонить Написать
    14 576 639 Р171 800 $ или 150 400
    Агент
    +7 (911) 561-05-33
    Начать чат с агентом
    Похожие предложения
    Помещение свободного назначения в Архангельская область, Архангельск ... - Фото 1
    Помещение свободного назначения в Архангельская область, Архангельск ... - Фото 2
    Продается коммерческое помещение в ЖК Аквилон SAGE напрямую от застройщика Сдача: III квартал 2025 ХАРАКТЕРИСТИКИ ПОМЕЩЕНИЯ Назначение: свободное назначение Отделка: Черновая Высота потолков: до 3,5 м Класс энергоэффективности ЖК: А Количество...
    • 1/16 эт.
    14 997 770 Р
    Агент
    +7 (911) Показать номер
    Посмотреть контакты
    Помещение свободного назначения в Архангельская область, Архангельск ... - Фото 1
    Помещение свободного назначения в Архангельская область, Архангельск ... - Фото 2
    Продается коммерческое помещение в ЖК Омега-Хаус напрямую от застройщика Дом сдан ХАРАКТЕРИСТИКИ ПОМЕЩЕНИЯ Назначение: свободное назначение Отделка: Черновая Количество этажей в помещении: 1 Проходимость: от 70 до 120 чел./час Наличие мокрой...
    • 1/9 эт.
    14 175 000 Р
    Агент
    +7 (911) Показать номер
    Посмотреть контакты
    Помещение свободного назначения в Архангельская область, Архангельск ... - Фото 1
    Помещение свободного назначения в Архангельская область, Архангельск ... - Фото 2
    Адрес : г. Архангельск, проспект Ленинградский, дом 40, корп.1. (первая линия).Продажа нежилого помещения свободного назначения на первом этаже в ЖК Оберег , Общая площадь помещения - 100 кв.м., высокие потолки, все коммуникации центральные, санузел,...
    • 1/9 эт.
    15 000 000 Р
    Агент
    +7 (911) Показать номер
    Посмотреть контакты
    Помещение свободного назначения в Архангельская область, Архангельск ... - Фото 1
    Помещение свободного назначения в Архангельская область, Архангельск ... - Фото 2
    Мероприятия месяца от Группы Аквилон:14.03 экскурсия по новостройкам Дополнительная СКИДКА Акции месяца от Группы Аквилон: Ипотека БЕЗ первого взноса для сотрудников ОСК В марте СКИДКИ до или ОТДЕЛКА в ПОДАРОК Рассрочка с первым взносом ВСЕГО...
    • 1/16 эт.
    15 369 045 Р
    Агент
    +7 (911) Показать номер
    Посмотреть контакты
    Помещение свободного назначения в Архангельская область, Архангельск ... - Фото 1
    Помещение свободного назначения в Архангельская область, Архангельск ... - Фото 2
    Продается коммерческое помещение в ЖК Аквилон City Towers напрямую от застройщика Сдача: IV квартал 2025 ХАРАКТЕРИСТИКИ ПОМЕЩЕНИЯ Назначение: свободное назначение Отделка: Черновая Высота потолков: до 6 м Класс энергоэффективности ЖК: А Количество...
    • 1/16 эт.
    14 403 844 Р
    Агент
    +7 (911) Показать номер
    Посмотреть контакты

    Не нашли подходящего объявления?

    Оставьте заявку, и наши риэлторы подберут псн в районе Архангельска

    (0)