Реализация объекта недвижимости приостановлена

Информация об помещении

1
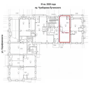
Этаж

Состояние и оснащение

Количество этажей
16
Развернуть

Помещение свободного назначения в Архангельская область, Архангельск ...

Продается коммерческое помещение в ЖК Аквилон City Towers напрямую от застройщика Сдача: IV квартал 2025 ХАРАКТЕРИСТИКИ ПОМЕЩЕНИЯ Назначение: свободное назначение Отделка: Черновая Высота потолков: до 6 м Класс энергоэффективности ЖК: А Количество входов: 1 (наличие отдельного входа с улицы) Количество этажей в помещении: 1 Проходимость: от 70 до 120 чел./час Количество квартир в ЖК: 502 Наличие мокрой точки: есть Преимущества: Центральный густонаселенный район города с высоким автомобильным и пешеходным трафиком. Парковка на территории. Большие светлые помещения с грамотной геометрией, площадь от 49,76 до 139,2 м. Типы оплат: 100 оплата. Рассрочка от Застройщика. Коммерческая ипотека от банков партнеров. Дополнительные возможности: Возможность сдачи в аренду помещения.

Читать полностью

    Реализация объекта недвижимости приостановлена

    Не нашли подходящего объявления?

    Оставьте заявку, и наши риэлторы подберут псн в районе Архангельска

    (0)