4 100 000 Р 50 400 $ или 43 310

Информация о помещении и здании

1
Этаж
5
Этажность
Развернуть
Агент
+7 (911) 560-28-99
Начать чат с агентом

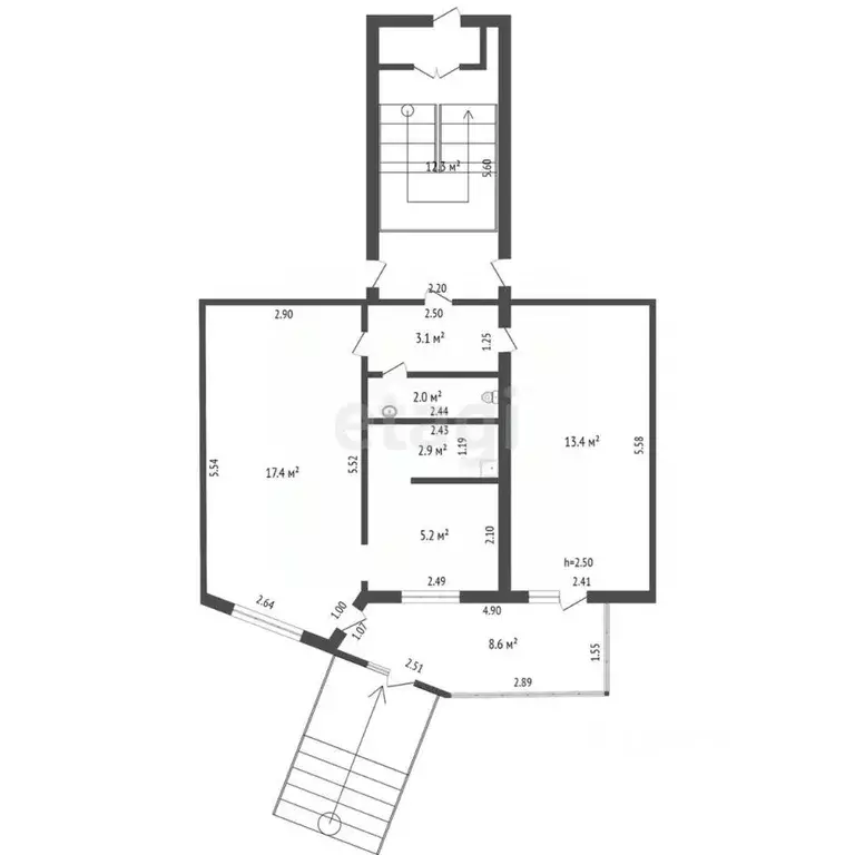
Офис в Архангельская область, Коряжма просп. Ленина, 22 (44 м)

Продаётся коммерческая недвижимость идеально подходящая для различных видов деятельности. Расположенное на первом этаже жилого дома в центре города, это помещение охватывает 44 квадратных метра и может служить как офис, арендный бизнес или магазин. Преимуществом является удобная парковка прямо напротив входа, обеспечивающая удобство для посетителей и сотрудников.В помещении предусмотрено централизованное отопление и освещение, санитарный узел с раздевалкой и выполнен качественный ремонт. Расположение в прекрасном проходном месте города гарантирует высокую проходимость и привлекательность для потенциальных клиентов. Это идеальная площадь для тех, кто ищет удачное место для бизнеса в центре города. Код пользователя: 132565Номер в базе: 3656427

Читать полностью
    Позвонить Написать
    4 100 000 Р50 400 $ или 43 310
    Агент
    +7 (911) 560-28-99
    Начать чат с агентом
    Похожие предложения
    Офис в Челябинская область, Челябинск ул. Молодогвардейцев, 34 (32 м) - Фото 1
    Офис в Челябинская область, Челябинск ул. Молодогвардейцев, 34 (32 м) - Фото 2
    3-й этаж, всего 10 этажей

    С НДС 20 .Продажа офисов в Аппарат-комплексе Виктория.Мебель и техника в подарок.Продажа от застройщика. Большой выбор планировок и площадей.Обращайтесь за планировками и ценами.Находится в самом центре Северо-Запада с хорошей транспортной развязкой.Помещение...
    • 3/10 эт.
    4 108 000 Р
    Агент
    +7 (982) Показать номер
    Посмотреть контакты
    Продажа офиса, Рязань, ул. Вишневая - Фото 1
    Продажа офиса, Рязань, ул. Вишневая - Фото 2
    Продажа офиса, Рязань, ул. Вишневая - Фото 3
    Продажа офиса, Рязань, ул. Вишневая - Фото 4
    Продажа офиса, Рязань, ул. Вишневая - Фото 5
    Продажа офиса, Рязань, ул. Вишневая - Фото 6
    Продажа офиса, Рязань, ул. Вишневая - Фото 7
    Продажа офиса, Рязань, ул. Вишневая - Фото 8
    Продажа офиса, Рязань, ул. Вишневая - Фото 9
    Продажа офиса, Рязань, ул. Вишневая - Фото 10
    Продажа офиса, Рязань, ул. Вишневая - Фото 11
    общая площадь офисного здания 70.4м², реализуемая площадь 70.4м², цокольный этаж, всего 10 этажей

    Код объекта: 1644514. Продается нежилое помещение, свободного назначения.Общая площадь 70,4 кв.м в цокольном этаже многоквартирного жилого дома. Дом расположен в густо населенном жилом секторе, ЖК "Вишневые сады", свободный подъезд и парковка автомашин...
    • 70.4 м²
    • -1/10 эт.
    4 000 000 Р
    Агент
    +7 (491) Показать номер
    Посмотреть контакты
    Офис в Ленинградская область, Гатчина Киевская ул., 17В (52 м) - Фото 1
    Офис в Ленинградская область, Гатчина Киевская ул., 17В (52 м) - Фото 2
    2-й этаж, всего 2 этажа

    Продается офисное помещение общей площадью 52 кв.м. На втором этаже двухэтажного здания. Помещение разделено на два кабинета. Офисное здание находится в удобном месте в окружении предприятий автомобильной направленности - автомойка, автосервисы, заправки,...
    • 2/2 эт.
    4 000 000 Р
    Агент
    +7 (981) Показать номер
    Посмотреть контакты
    Офис в Пензенская область, Пенза ул. Яшиной, 5 (41 м) - Фото 1
    Офис в Пензенская область, Пенза ул. Яшиной, 5 (41 м) - Фото 2
    2-й этаж, всего 18 этажей

    Продается офисное помещение с ремонтом в ЖК Лугометрия, по ул. Яшиной, 6.Описание:Общая площадь 41,7 мСовременный ремонт (пол из керамогранита, стены из декоративной штукатурки, освещение, надёжные межкомнатные двери)2 этаж/18 этажного дома 2023 года...
    • 2/18 эт.
    4 170 000 Р
    Агент
    +7 (986) Показать номер
    Посмотреть контакты
    Офис в Пермский край, Пермь ул. Крылова, 36 (34 м) - Фото 1
    Офис в Пермский край, Пермь ул. Крылова, 36 (34 м) - Фото 2
    3-й этаж, всего 6 этажей

    Место, где бизнес обретает крылья.Ключевые выгоды для инвесторов и покупателей:Прогнозируемый доход: до/кв.мПрогнозируемый годовойост стоимости помещения 20 Преимущества помещения (кабинет 303):Панорамные окнаГибкая функциональная планировкаВысокие потолки...
    • 3/6 эт.
    4 122 500 Р
    Агент
    +7 (919) Показать номер
    Посмотреть контакты

    Не нашли подходящего объявления?

    Оставьте заявку, и наши риэлторы подберут офис в районе Коряжмы

    (0)