5 300 000 Р 66 690 $ или 57 450

Информация о квартире

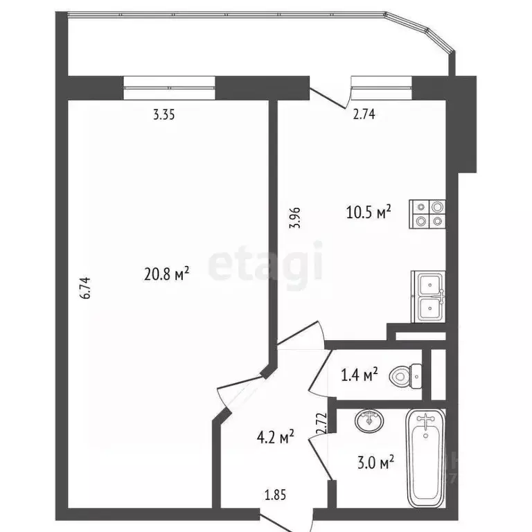
61 м2
Площадь
44 м2
Жилая
5 м2
Кухня
3
Комнаты
4
Этаж
5
Этажность

Дополнительная информация

Тип дома
панельный
Развернуть
Агент
+7 (911) 581-00-54
Начать чат с агентом

3-к кв. Архангельская область, Новодвинск ул. Ударников, 13 (61.2 м)

Трехкомнатная квартира на четвертом этаже пятиэтажного панельного дома предлагает рациональное планировочное решение и готовность к комфортному проживанию. Все окна, включая балконную конструкцию, оснащены современными стеклопакетами, что обеспечивает эффективную тепло- и шумоизоляцию. В квартире проведен косметический ремонт: потолки побелены, стены оклеены обоями, в комнатах сохранено деревянное напольное покрытие. Состояние полов на кухне и в коридоре требует обновления, что предоставляет новому владельцу возможность выбрать отделку по своему вкусу. Ключевым преимуществом является обновленная инженерная система: произведена замена канализационного стояка и трубопроводов холодной и горячей воды, что гарантирует долговременную надежность. Установлены индивидуальные счетчики учета воды и газа. Расположение объекта отличается высокой транспортной доступностью благодаря близости остановок общественного транспорта, а также развитой инфраструктурой района — в шаговой доступности находятся магазины продовольственных и хозяйственных товаров. Данное сочетание факторов делает квартиру практичным и выгодным предложением для жизни или инвестиций.Квартира подходит для участия в программе Арктическая ипотека со ставкой 2 . Код пользователя: 168186Номер в базе:

Читать полностью

    Для того, чтобы купить трехкомнатную квартиру по адресу: Новодвинск, ул. Ударников, 13, позвоните по телефону +7 (911) 581-00-54. Торопитесь! Объявление №30091434670 о продаже трехкомнатной квартиры опубликовано 2 дня назад.

    Позвонить Написать
    5 300 000 Р66 690 $ или 57 450
    Агент
    +7 (911) 581-00-54
    Начать чат с агентом
    Похожие предложения
    3-комнатная квартира: Новодвинск, улица Ударников, 13 (61.2 м) - Фото 1
    3-комнатная квартира: Новодвинск, улица Ударников, 13 (61.2 м) - Фото 2
    3-комнатная квартира, общая площадь 61м², жилая 44м², кухня 5м²

    Трехкомнатная квартира на четвертом этаже пятиэтажного панельного дома предлагает рациональное планировочное решение и готовность к комфортному проживанию. Все окна, включая балконную конструкцию, оснащены современными стеклопакетами, что обеспечивает...
    • 61 м²
    • 3-ком
    • 4/5 эт.
    5 300 000 Р
    Агент
    +7 (960) Показать номер
    Посмотреть контакты
    4-к кв. Архангельская область, Новодвинск Новая ул., 39 (61.4 м) - Фото 1
    4-к кв. Архангельская область, Новодвинск Новая ул., 39 (61.4 м) - Фото 2
    4-комнатная квартира, общая площадь 61м², кухня 5м²

    На прямой продаже отличная 4-х комнатная квартира на 1 этаже панельного дома. Общая площадь квартиры 61,4 кв.м.Удобное расположение комнат раздельные Окна выходят на разные стороны Установлены счетчики на воду и газ, заменены все коммуникации также произведена...
    • 61 м²
    • 4-ком
    • 1/5 эт.
    5 250 000 Р
    Агент
    +7 (911) Показать номер
    Посмотреть контакты
    3-к кв. Архангельская область, Новодвинск ул. Димитрова, 4 (61.2 м) - Фото 1
    3-к кв. Архангельская область, Новодвинск ул. Димитрова, 4 (61.2 м) - Фото 2
    3-комнатная квартира, общая площадь 61м², жилая 44м², кухня 6м²

    Продается очень тёплая и уютная 3-х комнатная квартира на 4 этаже 5-ти этажного панельного дома по адресу: Димитрова, 4. В квартире сделан приятный косметический ремонт. Санузел совмещен, в кафельной плитке, установлен навесной потолок. На кухне и в коридоре...
    • 61 м²
    • 3-ком
    • 4/5 эт.
    • панельный
    5 350 000 Р
    Агент
    +7 (911) Показать номер
    Посмотреть контакты
    3-комнатная квартира, общая площадь 64м², жилая 43м², кухня 12м²

    На продаже представлена трёхкомнатная квартира по улице Пролетарскаяасположена на первом этаже пятиэтажного кирпичного дома общая площадь 64,2 м. Удобное расположение комнат. Санузел раздельный. Просторная , большая кухня. Чистый подъезд без посторонних...
    • 64 м²
    • 3-ком
    • 1/5 эт.
    • кирпичный
    5 200 000 Р
    Агент
    +7 (911) Показать номер
    Посмотреть контакты
    1-к кв. Архангельская область, Архангельск Московский просп., 41к2 ... - Фото 1
    1-к кв. Архангельская область, Архангельск Московский просп., 41к2 ... - Фото 2
    1-комнатная квартира, общая площадь 39м², жилая 20м², кухня 10м²

    Светлая 1-комнатная квартира в Майской Горке — идеальный старт для молодой семьи Квартира на 2 этаже с видом во двор, где есть детская площадка. В шаговой доступности — два новых детских сада и гимназия 25. Рядом автобусная остановка и магазины.Что вас...
    • 39 м²
    • 1-ком
    • 2/9 эт.
    • монолит
    5 300 000 Р
    Агент
    +7 (911) Показать номер
    Посмотреть контакты

    Не нашли подходящего объявления?

    Оставьте заявку, и наши риэлторы подберут квартиру в районе Новодвинска

    (0)