336 000 Р 4 410 $ или 3 720

Информация об помещении

1
Этаж

Состояние и оснащение

Количество этажей
7
Развернуть
Агент
+7 (981) 550-59-81
Начать чат с агентом

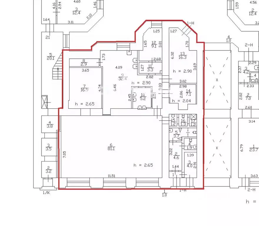
Помещение свободного назначения в Архангельская область, Северодвинск ...

Сдается в аренду торговая площадь в правом крыле торгового комплекса гостиницы Никольский Посад - деловом центре города Северодвинска. Общая площадь помещения 170 кв. м., для посетителей используется вход в правом крыле гостиницы, запасной выход во двор и в холл гостиницы служат для персонала. Торговый зал оборудован загрузочным входом, дополнительно может быть предложена площадь в цокольном этаже здания с собственным узлом загрузки.Арендная ставка составляет/кв. м., коммунальные услуги оплачиваются по факту потребления. Дополнительно. Гостиница Никольский Посад находится в центре города Северодвинска, на пересечении улицы К. Макса и проспекта Труда. В шаговой доступности расположены несколько крупных продовольственных и промтоварных магазинов, кафе, салоны сотовой связи, главпочтамт, кинотеатр Россия, автобусные остановки городских и пригородных маршрутов. Непосредственно в здании работают два торговых комплекса, представлены торговые сети Монро, Глобус, Robinzon, 220 Вольт, Акконд, Good Price, Стадион, салоны сотовой связи, ПВЗ OZON.К услугам арендаторов на первом этаже гостиницы - ресторан и бар, вдоль лицевого фасада здания удобная и вместительная парковка.

Читать полностью
    Позвонить Написать
    336 000 Р4 410 $ или 3 720
    Агент
    +7 (981) 550-59-81
    Начать чат с агентом
    Похожие предложения
    Помещение свободного назначения в Татарстан, Казань ул. Рашита ... - Фото 1
    Помещение свободного назначения в Татарстан, Казань ул. Рашита ... - Фото 2
    От собственника Без комиссии Характеристики:- 1 линия- Отдельная входная группа- Своя парковка- Есть возможность разместить вывеску- Доступ 24/7- Требует ремонта- Отдельно стоящее здание- С окнами- Возможность перепланировки- Коммунальные услуги оплачиваются...
    • 1/8 эт.
    350 000 Р
    Агент
    +7 (917) Показать номер
    Посмотреть контакты
    Помещение свободного назначения в Удмуртия, Ижевск Красногеройская ... - Фото 1
    Помещение свободного назначения в Удмуртия, Ижевск Красногеройская ... - Фото 2
    Сдается в самом центре Ижевска помещение свободного назначения1-й этаж в отдельно стоящем здании - первая линия, удобная локация, позволяющая обеспечить доступность для клиентов- собственная парковка- доступ 24/7- панорамные окна- все здание оснащено...
    • 1/2 эт.
    350 000 Р
    Агент
    +7 (982) Показать номер
    Посмотреть контакты
    Помещение свободного назначения в Ямало-Ненецкий АО, Новый Уренгой ул. ... - Фото 1
    Помещение свободного назначения в Ямало-Ненецкий АО, Новый Уренгой ул. ... - Фото 2
    Представляем Вашему вниманию земельный участок, общей площадью 15000 кв.м., расположенный в Южной части города, Восточная магистраль. Разрешенное использование земельного участка: земли населенных пунктов, предназначенные для размещения склада открытого...
    • 1/1 эт.
    350 000 Р
    Агент
    +7 (919) Показать номер
    Посмотреть контакты
    Помещение свободного назначения в Москва Волгоградский просп., 133 (75 ... - Фото 1
    Помещение свободного назначения в Москва Волгоградский просп., 133 (75 ... - Фото 2
    Антон. Прямая аренда от собственника. площадь свободного назначения на первом этаже административного здания . Постоянный пешеходный и автомобильный трафик . 3-й дом от метро . Высокая плотность застройки вокруг . Вакантное помещение прямо при входе...
    • 1/2 эт.
    340 000 Р
    Агент
    +7 (923) Показать номер
    Посмотреть контакты
    Помещение свободного назначения в Москва Луганская ул., 4К1 (160 м) - Фото 1
    Помещение свободного назначения в Москва Луганская ул., 4К1 (160 м) - Фото 2
    Сдается в аренду часть торгового помещения до 160м2 с отдельных входом и парковочным местом. Есть отдельный сан узел для данного помещения и доступ в общую комнату приема пищи. 2 оператора интернета в помещении. В соседнем помещении пвз Вб, которое уже...
    • 1/1 эт.
    350 000 Р
    Агент
    +7 (916) Показать номер
    Посмотреть контакты

    Не нашли подходящего объявления?

    Оставьте заявку, и наши риэлторы подберут псн в районе Северодвинска

    (0)